Villa singola in vendita

Bagnolo San Vito, Via P gobetti
€ 215.000
5 locali 5 locali
195 Mq 195 Mq
2 bagni 2 bagni

Villa singola in vendita

Bagnolo San Vito, Via P gobetti

Descrizione annuncio

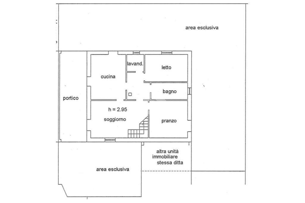
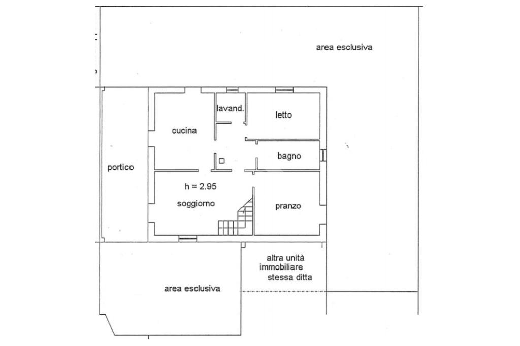
Nel comune di Bagnolo San Vito è disponibile una villa bifamiliare in vendita, ideale per chi cerca spazio e comfort.

L'immobile, di 195 mq, si sviluppa su più livelli e offre un'ampia distribuzione degli ambienti.

Al piano terra, un luminoso soggiorno accoglie gli ospiti, mentre la sala da pranzo e la cucina abitabile che si affaccia sul giardino privato,consentono momenti di relax all'aperto. La zona notte comprende tre camere da letto, garantendo privacy e tranquillità. Sono presenti inoltre due bagni,uno al paino terra con vasca ed uno al piano superiore con doccia. Completa la proprietà un' ulteriori camera, utilizzabile come studio o area hobby.

L'immobile dispone di un box auto e un posto auto esterno, assicurando praticità per il parcheggio.

Costruita nel 1995, la villa è dotata caldaia nuova a condensazione di aria condizionata, offrendo comfort in ogni stagione.

Questa soluzione abitativa rappresenta un'opportunità per chi desidera vivere in un contesto residenziale tranquillo e ben servito.

Mostra tutto

Nelle vicinanze

Trasporto pubblico Trasporto pubblico
Trasporto pubblico
240 m
Ricariche auto elettriche Ricariche auto elettriche
EnelX EVA+ Mantova Outlet Village
1,4 Km
Scuole Scuole
Scuole Elementari
2,2 Km
Farmacia Farmacia
Farmacia
2,8 Km
Supermercati Supermercati
Fashion District Mantova Outlet
1,6 Km
La Butega del Paes
2,4 Km
Negozi Negozi
Franklin & Marshall Store
1,6 Km
Carra
2,3 Km
Bar Bar
Ronconi
2,3 Km
Bar
2,4 Km
Ristoranti Ristoranti
Ristorante Pizzeria Paradiso
240 m
Ristoranti
2,5 Km
Trattoria Le Donne di Alfeo
2,7 Km
Mostra tutto

Caratteristiche

Rif.:
61128185
Piano:
2 (Piano su più livelli)
Box:
1
Posti auto:
1
Camere da letto:
3
Arredamento:
Parziale
Mostra tutto
Prezzo Prezzo
€ 215.000
Rata mutuo Rata mutuo
€ 1.013 / mese
Proponi il tuo prezzoProponi il tuo prezzo
Immobile valutato con T·Valuta

Classe Energetica

F
F
F
F
F
F
F
F
F
Anno di costruzione:
1995
Riscaldamento:
Autonomo
Tipo impianto:
A radiatori
Tipo alimentazione:
Metano

Ti interessa visionare l'immobile?

Fissa un appuntamento  Fissa un appuntamento

Richiedi informazioni

Clicca su Leggi per aprire l'informativa
* Questi campi sono obbligatori

Calcola il tuo mutuo

Semplice e senza impegno
Anticipo

( % )
Mutuo

( % )

pochi semplici passi

inserisci i tuoi dati
Questionario completato
Grazie per aver richiesto un appuntamento senza impegno con un nostro Consulente del Credito e Assicurativo.

Hai inserito correttamente tutti i dati necessari e a breve riceverai una e-mail con un link da convalidare per inviare i tuoi dati.
Affiliato
Tecno Virgilio Srl
Via Cisa , 95/H 46030 Borgo Virgilio (MN)

Il nostro staff


  • Matteo Belladelli
    Affiliato

  • Aurora Bagnoli
    Coordinatrice

  • Giorgia Baratti
    Collaboratrice

  • Giada Bozzini
    Collaboratrice

  • Maria Luisa Rocca
    Collaboratrice

  • Gilbert Owusu
    Collaboratore
Via Cisa , 95/H 46030 Borgo Virgilio (MN)
Zona: Cerese-Cappelletta-Borgoforte-Bagnolo S.Vito-S.Biagio
Mostra su mappa
Orari: lunedì-venerdì: 9.00-13.00 15.00-19.30 sabato: 9.00-13.00 pomeriggio solo su appuntamento
Affiliato
Tecno Virgilio Srl
Via Cisa , 95/H 46030 Borgo Virgilio (MN)

2026 Tecnocasa Franchising S.p.A. - P. IVA 08365160152 - Via Monte Bianco 60/A 20089 Rozzano (MI). Ogni agenzia ha un proprio titolare ed è autonoma. Privacy policy | Policy utilizzo | Cookie policy