Capannone in vendita

Borgo Virgilio, via cisa - Cerese
€ 65.000
140 Mq 140 Mq

Capannone in vendita

Borgo Virgilio, via cisa - Cerese

Descrizione annuncio

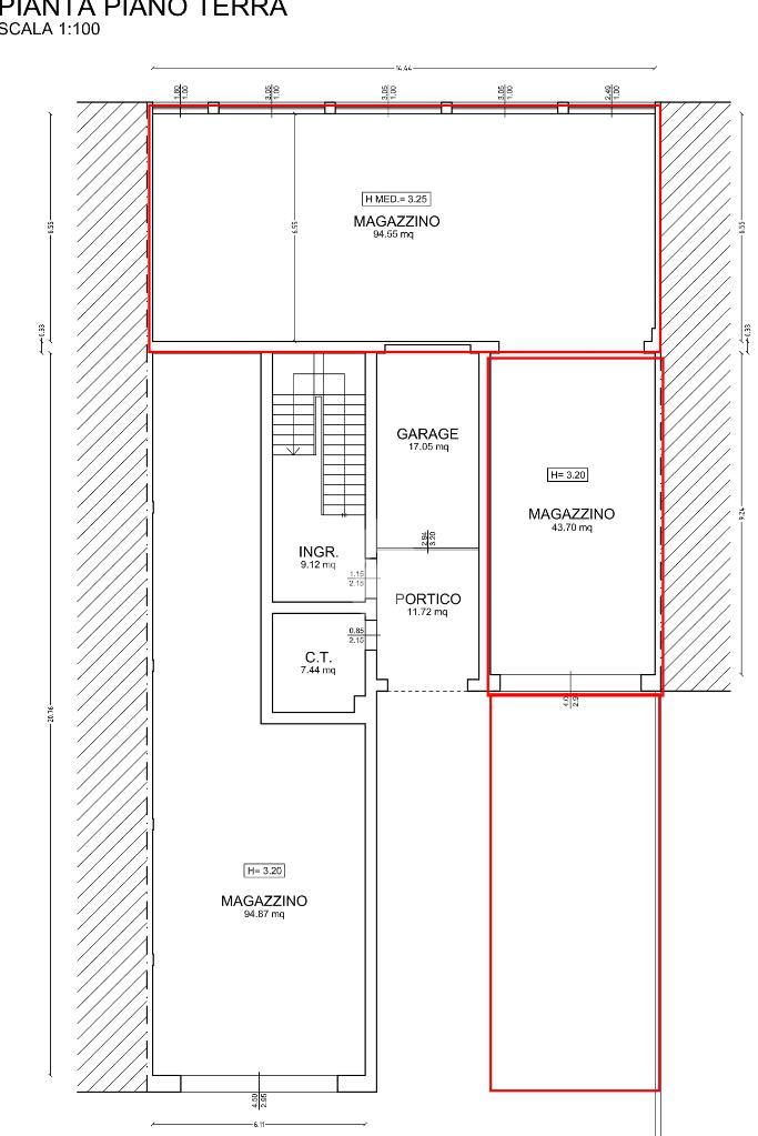
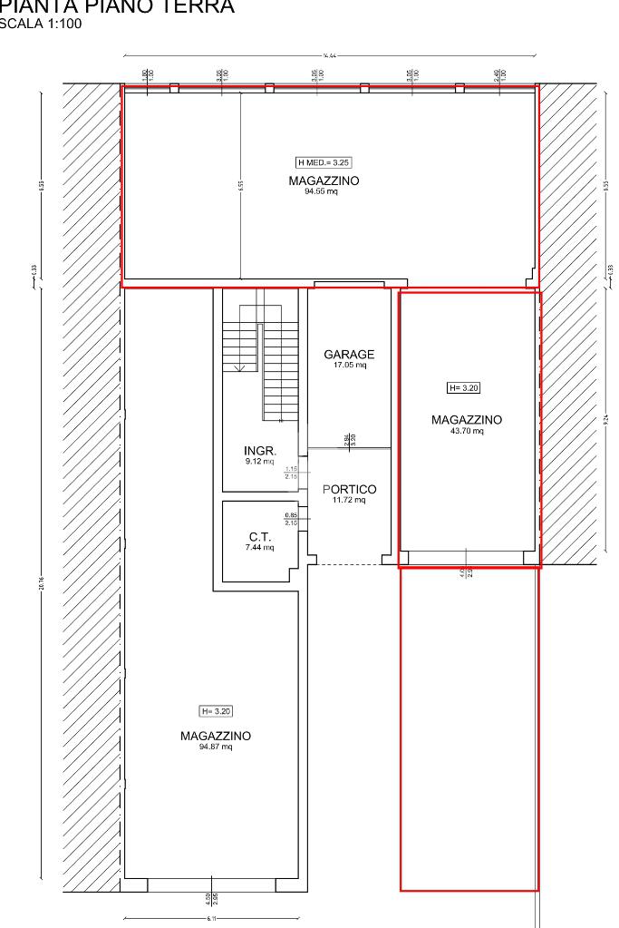
Nel comune di Borgo Virgilio, nella località di Cerese, è disponibile per la vendita un capannone di 140 mq situato al piano terra, questo spazio offre un'ottima opportunità per chi cerca una soluzione versatile per attività commerciali o industriali.

La struttura è ideale per essere utilizzata come magazzino, grazie alla sua altezza di 3 metri che consente un'efficiente organizzazione degli spazi interni. Inoltre, l'area esterna è progettata per facilitare le operazioni di carico e scarico merci, rendendo le attività logistiche più agevoli.

La posizione strategica nel comune di Borgo Virgilio garantisce un facile accesso alle principali vie di comunicazione, offrendo un valore aggiunto per chi desidera ottimizzare i tempi di trasporto e distribuzione.

Questo capannone rappresenta una soluzione pratica e funzionale per diverse esigenze professionali.

Disponibile alla vendita con IVA O CON REVERSE CHARGE

Per motivi di privacy l'indirizzo ed il numero civico spesso non corrispondono alla reale ubicazione dell'immobile.

Mostra tutto

Nelle vicinanze

Trasporto pubblico Trasporto pubblico
Borgochiesanuova, Ipsia
Borgochiesanuova, Ipsia
2,7 Km
Ospedale Nuovo
Ospedale Nuovo
2,9 Km
Levata
Levata
2,1 Km
Borgochiesanuova
Borgochiesanuova
2,9 Km
Scuole Scuole
Istituto San Giovanni Bosco - Sede di Mantova
2,7 Km
Istituto Superiore Bonomi-Mazzolari
2,8 Km
Istituto Superiore "Enrico Fermi"
2,8 Km
Enaip
3,0 Km
Farmacia Farmacia
Farmacia Beduschi
110 m
Supermercati Supermercati
Ipercoop
950 m
Bar Bar
Barlume
120 m
Bar
910 m
KM3
1,2 Km
Chiringuito
1,5 Km
Open Spice
2,0 Km
Ristoranti Ristoranti
Trattoria Pizzeria Al Pozzo Blu
430 m
Ristorante Pizzeria Ca' Nova
1,1 Km
Osteria Antichi Sapori
2,5 Km
Mostra tutto

Caratteristiche

Rif.:
61196059
Piano:
Terra
Condizionamento:
Assente
Ascensore:
No
Riscaldamento:
Assente
Libero:
Mostra tutto
Prezzo Prezzo
€ 65.000
Rata mutuo Rata mutuo
€ 308 / mese
Proponi il tuo prezzoProponi il tuo prezzo

Altre caratteristiche

Classe Energetica

Questo immobile è esente da classe energetica
Anno di costruzione:
1990
Riscaldamento:
Assente

Ti interessa visionare l'immobile?

Fissa un appuntamento  Fissa un appuntamento

Richiedi informazioni

Clicca su Leggi per aprire l'informativa
* Questi campi sono obbligatori

Calcola il tuo mutuo

Semplice e senza impegno
Anticipo

( % )
Mutuo

( % )

pochi semplici passi

inserisci i tuoi dati
Questionario completato
Grazie per aver richiesto un appuntamento senza impegno con un nostro Consulente del Credito e Assicurativo.

Hai inserito correttamente tutti i dati necessari e a breve riceverai una e-mail con un link da convalidare per inviare i tuoi dati.
Affiliato
Tecno Virgilio Srl
Via Cisa , 95/H 46030 Borgo Virgilio (MN)

Il nostro staff


  • Matteo Belladelli
    Affiliato

  • Aurora Bagnoli
    Coordinatrice

  • Giorgia Baratti
    Collaboratrice

  • Giada Bozzini
    Collaboratrice

  • Maria Luisa Rocca
    Collaboratrice

  • Gilbert Owusu
    Collaboratore
Via Cisa , 95/H 46030 Borgo Virgilio (MN)
Zona: Cerese-Cappelletta-Borgoforte-Bagnolo S.Vito-S.Biagio
Mostra su mappa
Orari: lunedì-venerdì: 9.00-13.00 14.30-19.00 sabato: 9.00-13.00 pomeriggio solo su appuntamento
Affiliato
Tecno Virgilio Srl
Via Cisa , 95/H 46030 Borgo Virgilio (MN)

2026 Tecnocasa Franchising S.p.A. - P. IVA 08365160152 - Via Monte Bianco 60/A 20089 Rozzano (MI). Ogni agenzia ha un proprio titolare ed è autonoma. Privacy policy | Policy utilizzo | Cookie policy