Casa indipendente in vendita

Borgo Virgilio, Via cisa - Cerese
€ 190.000
500 Mq 500 Mq
2 bagni 2 bagni

Casa indipendente in vendita

Borgo Virgilio, Via cisa - Cerese

Descrizione annuncio

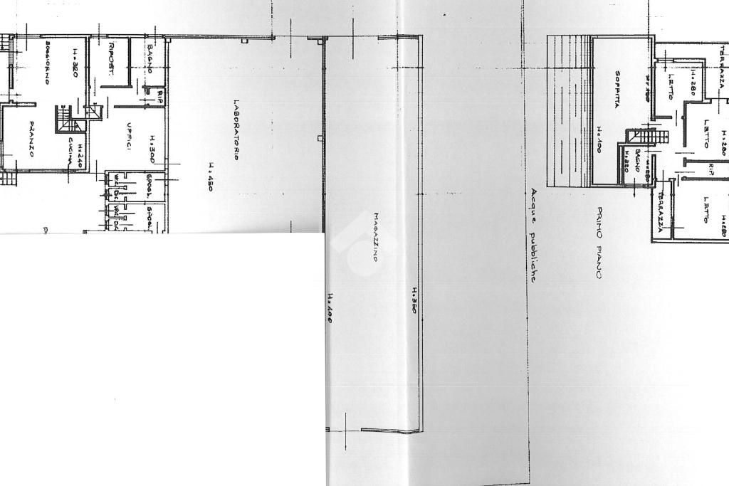
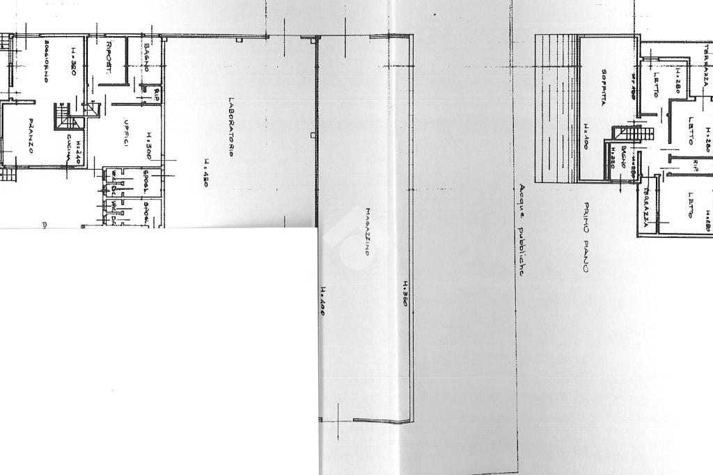
Borgo virgilio: in zona limitrofa al centro abitato proponiamo casa semindipendente con giardino dotata di laboratoio e magazzino per attività.

L'immobile è composto da soggiorno e cucina separati, tre camere da letto matrimoniali bagno e ripostiglio.

Posto sul retro dell'abitazione abbiamo 2 vani di circa 200 mq ciascuno, altezza 4 m uno e l'altro 4.50 m ad uso laboratorio ed a uso magazzino dotati ulteriori uffici e zona spogliatoi dipendenti.

Per motivi di privacy l'indirizzo ed il numero civico spesso non corrispondono alla reale ubicazione dell'immobile.

Mostra tutto

Nelle vicinanze

Trasporto pubblico Trasporto pubblico
Borgochiesanuova, Ipsia
Borgochiesanuova, Ipsia
2,7 Km
Ospedale Nuovo
Ospedale Nuovo
2,9 Km
Levata
Levata
2,1 Km
Borgochiesanuova
Borgochiesanuova
2,9 Km
Scuole Scuole
Istituto San Giovanni Bosco - Sede di Mantova
2,7 Km
Istituto Superiore Bonomi-Mazzolari
2,8 Km
Istituto Superiore "Enrico Fermi"
2,8 Km
Enaip
3,0 Km
Scuole
3,0 Km
Farmacia Farmacia
Farmacia Beduschi
100 m
Supermercati Supermercati
Ipercoop
970 m
Bar Bar
Barlume
110 m
Bar
920 m
KM3
1,2 Km
Chiringuito
1,4 Km
Open Spice
2,0 Km
Ristoranti Ristoranti
Trattoria Pizzeria Al Pozzo Blu
430 m
Ristorante Pizzeria Ca' Nova
1,1 Km
Osteria Antichi Sapori
2,5 Km
Mostra tutto

Caratteristiche

Rif.:
61130889
Camere da letto:
3
Arredamento:
Parziale
Condizionamento:
Autonomo
Ascensore:
No
Riscaldamento:
Autonomo
Mostra tutto
Prezzo Prezzo
€ 190.000
Rata mutuo Rata mutuo
€ 900 / mese
Proponi il tuo prezzoProponi il tuo prezzo
Immobile valutato con T·Valuta

Classe Energetica

G
G
G
G
G
G
G
G
G
Anno di costruzione:
1984
Riscaldamento:
Autonomo
Tipo impianto:
A radiatori
Tipo alimentazione:
Metano

Ti interessa visionare l'immobile?

Fissa un appuntamento  Fissa un appuntamento

Richiedi informazioni

Clicca su Leggi per aprire l'informativa
* Questi campi sono obbligatori

Calcola il tuo mutuo

Semplice e senza impegno
Anticipo

( % )
Mutuo

( % )

pochi semplici passi

inserisci i tuoi dati
Questionario completato
Grazie per aver richiesto un appuntamento senza impegno con un nostro Consulente del Credito e Assicurativo.

Hai inserito correttamente tutti i dati necessari e a breve riceverai una e-mail con un link da convalidare per inviare i tuoi dati.
Affiliato
Tecno Virgilio Srl
Via Cisa , 95/H 46030 Borgo Virgilio (MN)

Il nostro staff


  • Matteo Belladelli
    Affiliato

  • Aurora Bagnoli
    Coordinatrice

  • Giorgia Baratti
    Collaboratrice

  • Giada Bozzini
    Collaboratrice

  • Maria Luisa Rocca
    Collaboratrice

  • Gilbert Owusu
    Collaboratore
Via Cisa , 95/H 46030 Borgo Virgilio (MN)
Zona: Cerese-Cappelletta-Borgoforte-Bagnolo S.Vito-S.Biagio
Mostra su mappa
Orari: lunedì-venerdì: 9.00-13.00 14.30-19.00 sabato: 9.00-13.00 pomeriggio solo su appuntamento
Affiliato
Tecno Virgilio Srl
Via Cisa , 95/H 46030 Borgo Virgilio (MN)

2026 Tecnocasa Franchising S.p.A. - P. IVA 08365160152 - Via Monte Bianco 60/A 20089 Rozzano (MI). Ogni agenzia ha un proprio titolare ed è autonoma. Privacy policy | Policy utilizzo | Cookie policy