Porzione di bifamiliare in vendita

Borgo Virgilio, Via parmense - Borgoforte
€ 149.000
182 Mq 182 Mq
2 bagni 2 bagni

Porzione di bifamiliare in vendita

Borgo Virgilio, Via parmense - Borgoforte

Descrizione annuncio

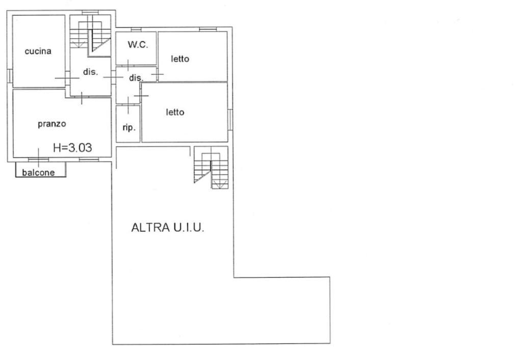
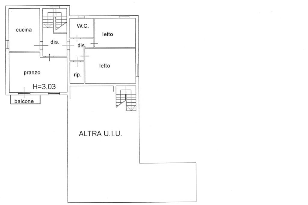
Borgo Virgilio: In località Borgoforte proponiamo abitazione in bifamiliare, posta su due livelli, posta in una zona molto tranquilla ma allo stesso tempo comoda ai servizi di prima necessità.

L'immobile al piano terreno presenta l'ingresso indipendente con accesso all'ampia sala ed infine al bagno con attacchi lavanderia.

Salendo al piano primo troviamo la sala da pranzo dotata di balcone con accanto la cucina abitabile separata.

Tramite il disimpegno abbiamo la zona notte composta dalla camera matrimoniale, un ripostiglio, la camera da letto tre quarti ed infine il bagno con vasca.

La proprietà presenta un ampio giardino privato posto sul retro dell'abitazione con l'accesso alle due autorimesse ed all'ampio porticato perfetto per pranzi e cene in compagnia.

Immobile disponibile da subito con la possibilità di includere l'arredo presente!

Mostra tutto

Nelle vicinanze

Trasporto pubblico Trasporto pubblico
Romanore
Romanore
1,7 Km
Farmacia Farmacia
Farmacia
20 m
Ristoranti Ristoranti
Trattoria Bigiolla
340 m
Fate Vobis
420 m
Mostra tutto

Caratteristiche

Rif.:
61152088
Piano:
Su più livelli di 2
Totale piani:
2
Box:
2
Balconi:
1
Camere da letto:
2
Mostra tutto
Prezzo Prezzo
€ 149.000
Rata mutuo Rata mutuo
€ 702 / mese
Proponi il tuo prezzoProponi il tuo prezzo
Immobile valutato con T·Valuta

Classe Energetica

G
G
G
G
G
G
G
G
G
EP globale non rinnovabile:
422.49 kW h/m² anno
EP invernale del fabbricato:
EP estiva del fabbricato:
Anno di costruzione:
1967
Riscaldamento:
Autonomo
Tipo impianto:
A radiatori
Tipo alimentazione:
Metano

Ti interessa visionare l'immobile?

Fissa un appuntamento  Fissa un appuntamento

Richiedi informazioni

Clicca su Leggi per aprire l'informativa
* Questi campi sono obbligatori

Calcola il tuo mutuo

Semplice e senza impegno
Anticipo

( % )
Mutuo

( % )

pochi semplici passi

inserisci i tuoi dati
Questionario completato
Grazie per aver richiesto un appuntamento senza impegno con un nostro Consulente del Credito e Assicurativo.

Hai inserito correttamente tutti i dati necessari e a breve riceverai una e-mail con un link da convalidare per inviare i tuoi dati.
Affiliato
Tecno Virgilio Srl
Via Cisa , 95/H 46030 Borgo Virgilio (MN)

Il nostro staff


  • Matteo Belladelli
    Affiliato

  • Aurora Bagnoli
    Coordinatrice

  • Giorgia Baratti
    Collaboratrice

  • Giada Bozzini
    Collaboratrice

  • Maria Luisa Rocca
    Collaboratrice

  • Gilbert Owusu
    Collaboratore
Via Cisa , 95/H 46030 Borgo Virgilio (MN)
Zona: Cerese-Cappelletta-Borgoforte-Bagnolo S.Vito-S.Biagio
Mostra su mappa
Orari: lunedì-venerdì: 9.00-13.00 15.00-19.30 sabato: 9.00-13.00 pomeriggio solo su appuntamento
Affiliato
Tecno Virgilio Srl
Via Cisa , 95/H 46030 Borgo Virgilio (MN)

2026 Tecnocasa Franchising S.p.A. - P. IVA 08365160152 - Via Monte Bianco 60/A 20089 Rozzano (MI). Ogni agenzia ha un proprio titolare ed è autonoma. Privacy policy | Policy utilizzo | Cookie policy